





Хорватия, Далмация острова, Brac - Земля с разрешением на строительство
ID: 2041/45Основная информация
Сухопутное пространство:540 m2
Расстояние до моря:400 m
Преимущества недвижимости
- Bид на море
О собственности
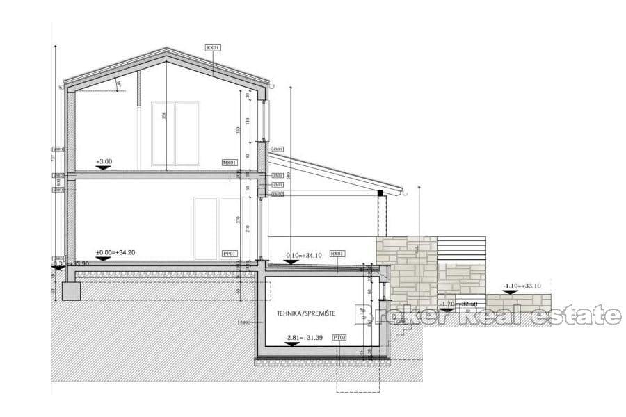
Земельный участок с разрешением, расположенный на острове Брач в центре города, общей площадью 540 м2. Продается земельный участок с проектом виллы общей площадью 175 м2 и вспомогательным зданием и бассейном 28 м2. Земля предлагает вид на море.
Вся необходимая инфраструктура (электричество и вода) находится рядом с участком.
Расположение земли в центре города на расстоянии 400 м от моря.
Местоположение
Brac, Далмация острова
Брач площадью 396 квадратных километров является крупнейшим островом в Далмации и третьим по величине островом в Адриатическом море в целом. Брач имеет длинную и извилистую береговую линию с множеством маленьких и больших заливов. Особенно примечательны естественные гавани Супетар, Сплитска, Пучишча, а также Повля, Сумартин, Милна и Бобовишча.
Вы ищете что-то еще?










