





Hrvatska, Dalmacija obala, Šibenik - Dalmatinska kamena kuća za renovaciju s projektom
ID: 5357/30Osnovni podaci
Stambeni prostor:108 m2
Zemljište:60 m2
Sobe:3
Kupaonice:5
Katovi:3
Udaljenost od mora:150 m
Prednosti nekretnine
- Kamena kuća
Pogodnosti
- Energetski certifikat
O nekretnini
Prodaje se kamena kuća za renovaciju na atraktivnoj lokaciji u blizini centra grada i plaže Banj.
U naravi, radi se o dvije kamene kuće koje se mogu spojiti u jednu. U opciji nadogradnje, kuća ima pogled na more. Kuća ima priključak za vodu, struju I kanalizaciju. Moguće je kupiti objekte odvojeno; manji za 70.000€ i veći za 80.000€.
U cijenu je uključen projekt za uređenu obiteljsku kuću korisne stambene površine 103.8 m2 ili projekt za modernu kuću stambene površine 160 m2 koja se proteže na tri etaže (sve komplet do građevinske dozvole).
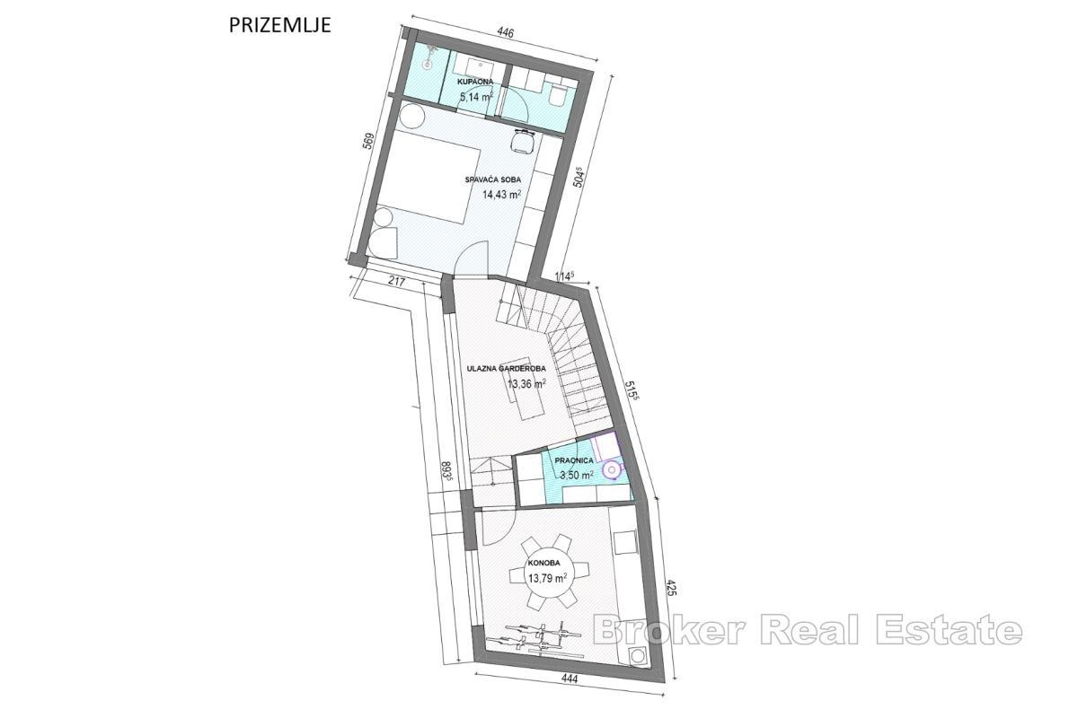
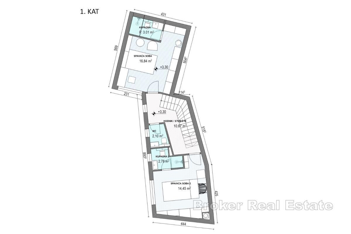
Prvim projektom je previđen funkcionalni raspored s ulaznim djelom u prizemlje s hodnikom, kupaonicom, wellness prostorijom sa saunom te dvije spavaće sobe svaka s vlastitom kupaonicom.
Unutarnjim stepenicama se dilazi do sljedeće etaže na kojoj se nalazi open space prostor koji objedinjuje kuhinju, blagovaonicu i dnevni boravak, a na galerijskoj etaži se nalazi spavaća soba i radni prostor.
Kroz dnevni boravak se pruža izlaz na terasu s ljetnom kuhinjom i prostorom namijenjenim za druženje.
Također postoji opcija za modernu kuću stambene površine 160 m2 koja se proteže na tri etaže, a sadrži konobu, ulazni hall sa strojarnicom i vešerajem te master sobom s kupaonicom. Na prvom katu su dvije spavaće sobe s dvije moderno uređene kupaonice i jedan toalet, dok je na drugom katu veliki dnevni boravak, blagovaona s barom i prostrana kuhinja te izlaz na krovnu terasu iznad cijele kuće s predivnim pogledom na more.
Kuća je smještena u blizini plaže Banj i tvrđave Sv. Mihovil, osnovne škole, vrtića te svih ostalih sadržaja potrebnih za ugodan urban život.
Lokacija
Šibenik, Dalmacija obala
Šibenik, povijesno poznat kao Sebenico, je povijesni grad u Hrvatskoj, smješten u srednjoj Dalmaciji, gdje se rijeka Krka ulijeva u Jadransko more. Šibenik je političko, obrazovno, prometno, industrijsko i turističko središte Šibensko-kninske županije, a ujedno je i treći grad po veličini u dalmatinskoj regiji.
Tražiš li nešto drugo?






