





Хорватия, Далмация побережье, Sibenik - Далматинский каменный дом для реконструкции с проектом
ID: 5357/30Основная информация
Жилое пространство:108 m2
Сухопутное пространство:60 m2
Спальни:3
Ванные комнаты:5
Этажи:3
Расстояние до моря:150 m
Преимущества недвижимости
- Kаменный дом
Удобства
- Энергетический сертификат
О собственности
Продаётся каменный дом под реконструкцию в привлекательном месте недалеко от центра города и пляжа Бань.
В рамках проекта речь идёт о двух каменных домах, которые можно объединить в один. При модернизации из дома открывается вид на море. В доме есть вода, электричество и канализация. Возможна покупка отдельных объектов: меньших по размеру за 70 000 евро и больших за 80 000 евро.
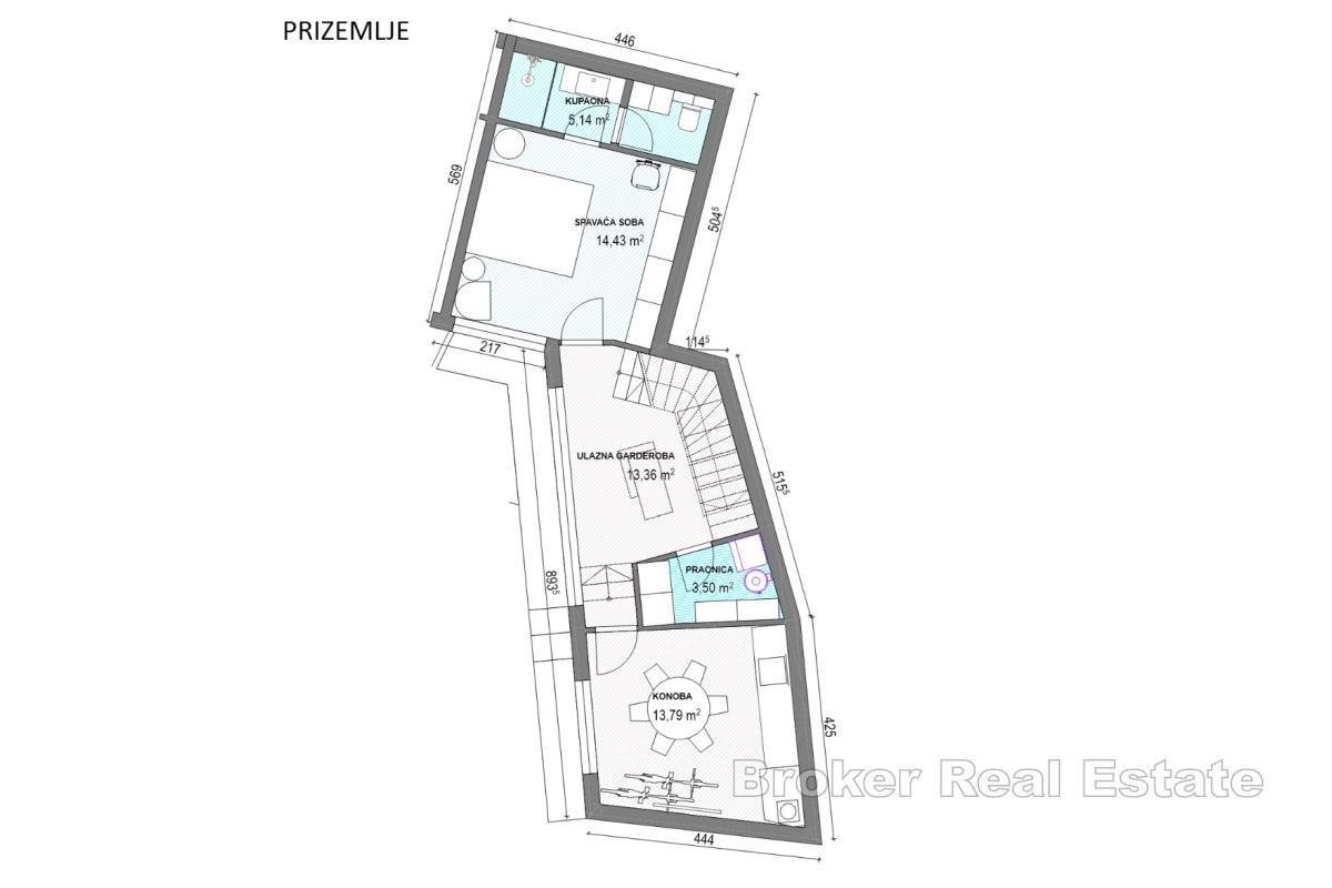
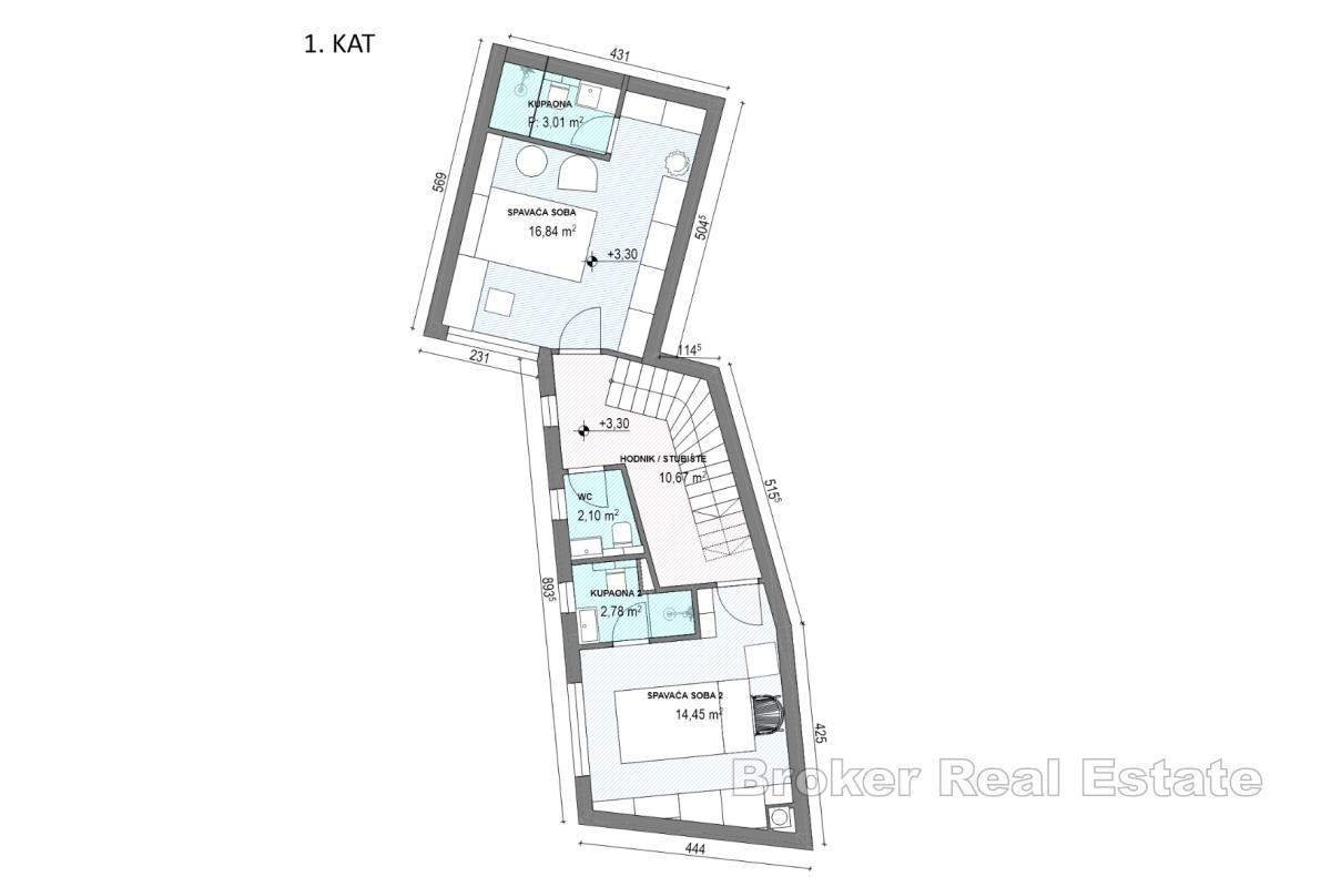
В стоимость входит проект благоустроенного семейного дома с полезной жилой площадью 103,8 м² или проект современного трёхэтажного дома площадью 160 м² (полностью готов к получению разрешения на строительство).
Первый проект предполагал функциональную планировку с прихожей на первом этаже, холлом, ванной комнатой, спа-зоной с сауной и двумя спальнями, каждая с собственной ванной комнатой. Внутренняя лестница ведет на второй этаж, где находится открытое пространство, объединяющее кухню, столовую и гостиную. На галерее расположены спальня и рабочая зона.
Гостиная выходит на террасу с летней кухней и зоной для отдыха.
Также предлагается современный дом площадью 160 м², занимающий три этажа и включающий таверну, прихожую с машинным отделением и прачечной, а также главную спальню с ванной комнатой. На первом этаже расположены две спальни с двумя современными ванными комнатами и одним туалетом, а на втором — большая гостиная, столовая с баром, просторная кухня и выход на террасу на крыше над всем домом с прекрасным видом на море.
Дом расположен недалеко от пляжа Бань и крепости Святого Михаила, начальной школы, детского сада и всех других удобств, необходимых для приятной городской жизни.
Местоположение
Sibenik, Далмация побережье
Шибеник, исторически известный как Себенико, — исторический город в Хорватии, расположенный в центральной Далмации, где река Крка впадает в Адриатическое море. Шибеник — политический, образовательный, транспортный, промышленный и туристический центр Шибенско-Книнской жупании, а также третий по величине город Далматинского региона.
Вы ищете что-то еще?






