





Croatie, Iles de Dalmatie, Pasman - 12 appartements au bord de la mer, à vendre
ID: 2015/75Informations de base
Espace terrestre:835 m2
Distance de la mer:10 m
Front de mer
Avantages immobiliers
- Vue sur la mer
Commodités
- Certificat énergétique
- Moderne
- Parking
À propos de la propriété
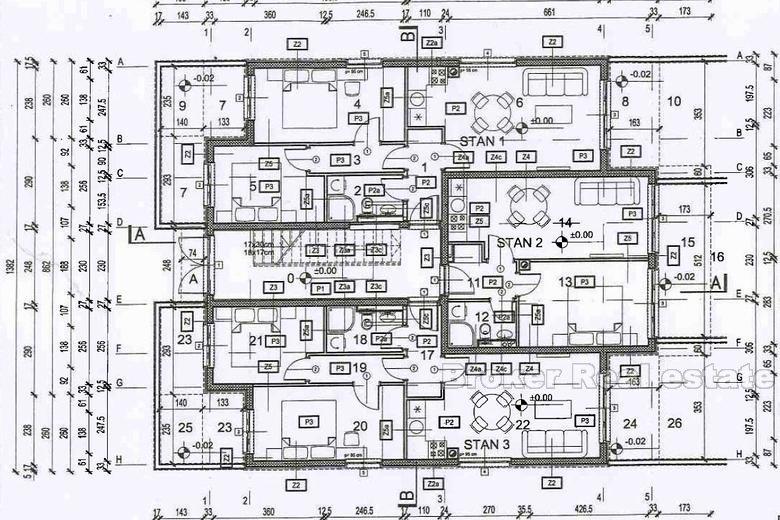
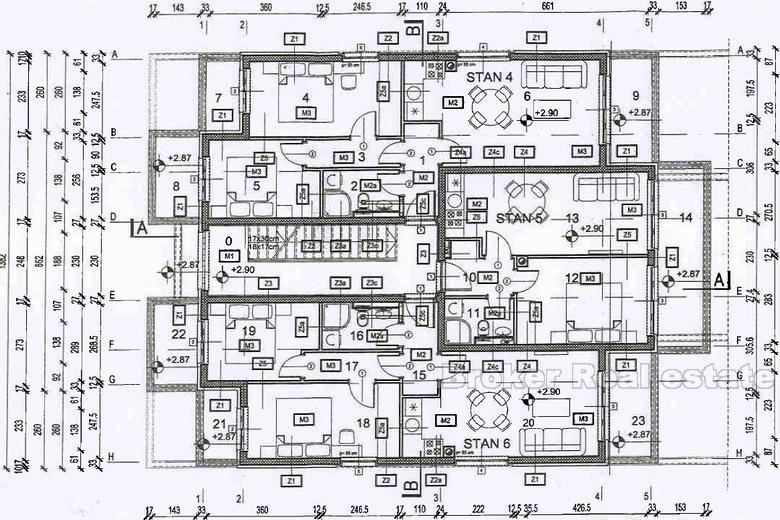
Plus petit immeuble résidentiel avec 12 appartements dans le bâtiment est situé sur l’île de Pasman, dans la première rangée de la mer.
Il se compose de 4 étages, rez-de-chaussée, premier étage, deuxième étage et grenier.
À chaque étage, il y a trois appartements, deux chambres et une chambre.
Un salon d’une chambre d’une surface habitable de 39m2 comprend une entrée, un couloir, une chambre, une cuisine, une salle à manger, un salon et un balcon.
Les appartements de deux pièces de 59m2 se compose d’un hall d’entrée, d’un couloir, de deux chambres, d’une cuisine, d’une salle à manger, d’un salon et d’un balcon.
La finition est attendue pour octobre 2017.
Emplacement
Pasman, Iles de Dalmatie
Pašman est une île de l'Adriatique au large de la Dalmatie du Nord en Croatie d'une superficie de 60,11 km2, située au sud de Zadar, entourée par les îles d'Ugljan au nord-ouest, d'Iž à l'ouest et de Dugi Otok et Žut au sud-ouest. . Parmi toutes les îles de l'archipel croate, Pašman possède la plus grande surface verte par rapport à sa superficie totale.
Vous cherchez autre chose?






