





Kroatien, Dalmatien Küste, Split stadt - Wohnungen im Neubau, zu verkaufen
ID: 2019/81Immobilienvorteile
- Meerblick
- Neubau
Annehmlichkeiten
- Garage
- Modern
- Parken
Über die Immobilie
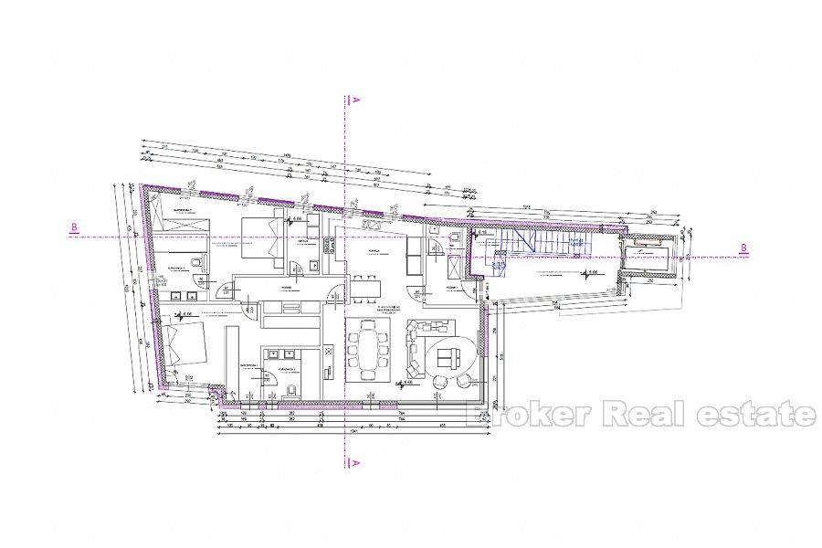
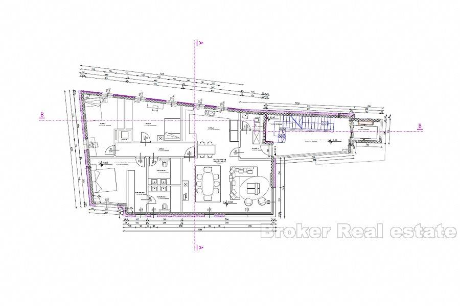
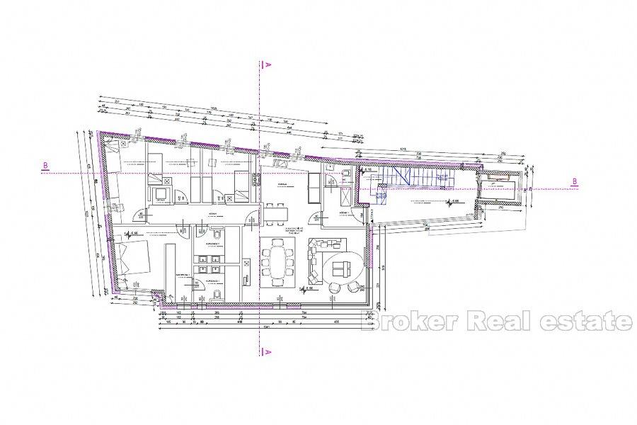
Neubau im elitärsten Stadtteil von Split, Meje. Zum Verkauf stehen komfortable Wohnungen in einem attraktiven Gebäude, das sich derzeit im Bau befindet. Das Bauvorhaben wird zwei Tiefgaragen und vier Obergeschosse sowie Aufbauten umfassen. Die Garage wird einen Aufzug für Autos haben, und die Wohnungen werden mit einem Panoramaaufzug verbunden. Die Fläche beträgt ca. 150 m2. Es besteht die Möglichkeit, ein Apartment mit zwei, drei oder vier Schlafzimmern zu kaufen. Die Wohnungen werden im Rohbau verkauft (nicht fertiggestellt) und jede Wohnung wird mit einer Daikin-Klimaanlage ausgestattet.
Standort
Split stadt, Dalmatien Küste
Split ist nach der Hauptstadt Zagreb die zweitgrößte Stadt Kroatiens, die größte Stadt Dalmatiens und die größte Stadt an der kroatischen Küste. Es liegt am Ostufer der Adria und erstreckt sich über eine zentrale Halbinsel und deren Umgebung. Als überregionaler Verkehrsknotenpunkt und beliebtes Touristenziel ist die Stadt mit den adriatischen Inseln und der Apenninenhalbinsel verbunden.
Suchen Sie etwas anderes?







