





Хорватия, Далмация побережье, Trogir - Дом с земельным участком в отличном месте.
ID: 2011/100Основная информация
Жилое пространство:250 m2
Сухопутное пространство:825 m2
Спальни:2
Ванные комнаты:1
Этажи:2
Расстояние до моря:120 m
Преимущества недвижимости
- Bид на море
Удобства
- Энергетический сертификат
О собственности
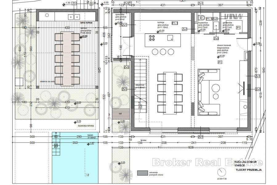
Продается недвижимость на просторном участке земли общей площадью 825 м2 с проектом.
Недвижимость простирается на два этажа с видом на море и город Винишче.
Был создан проект просторной виллы с бассейном и летней кухней.
Согласно проекту, первый этаж состоит из просторной гостиной, которая соединяется с кухней и столовой, туалета и гардеробной. Внутренняя лестница ведет на второй этаж, который состоит из трех просторных спален, одна из которых имеет собственную ванную комнату, на втором этаже есть дополнительная ванная комната и балкон с очаровательным видом на море. На третьем этаже есть место для отдыха и хранения вещей.
Во дворе есть бассейн вместе с летней кухней и зоной для загара.
Общая жилая площадь проекта составляет более 200 м2.
Недвижимость расположена в Винишче, всего в 20 минутах от Трогира.
В этом месте есть длинная набережная вдоль моря и пляжей. Всего в 3 км от залива находится большой остров Дрвеник со знаменитой Голубой лагуной, островками Кркняши и серией небольших пляжей. Винишче также известно как прекрасное место для рыбалки.
Цена не фиксированная.
Местоположение
Trogir, Далмация побережье
Трогир — исторический город и гавань на Адриатическом побережье в Сплитско-Далматинской жупании, Хорватия. Исторический город Трогир расположен на небольшом острове между материковой частью Хорватии и островом Чиово. Он расположен в 27 километрах к западу от города Сплит. С 1997 года исторический центр Трогира внесен в список объектов Всемирного наследия ЮНЕСКО.
Вы ищете что-то еще?










